• Front
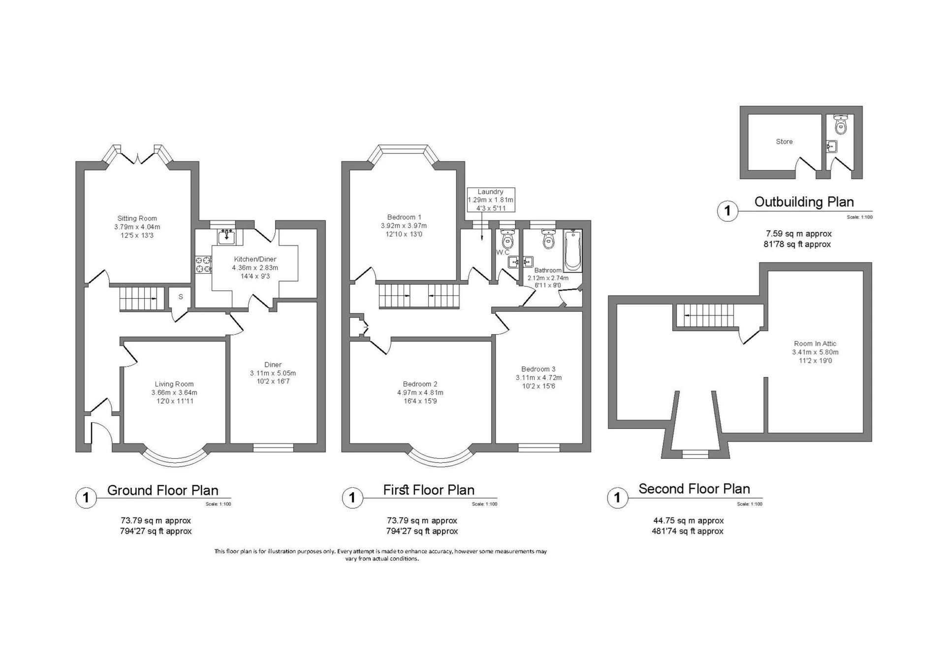
  • Floor plan
  • Reception 2
  • Reception 1
  • Kitchen
  • Dining Room
  • Stairs leading to
  • Bedroom 1
  • bedroom 2
  • Bedroom 3
  • Photo 10
  • Photo 9
  • Stairs leading to
  • Room in attic
  • Room in attic
  • Photo 7
  • Photo 8

Scroll Down

For Sale Windsor Avenue, Leicester, LE4 Offers above £399,950

3 Bedroom Terraced  For Sale Offers above £399,950

Windsor Avenue, Leicester, LE4

Spacious three-bedroom mid-terrace home set over three floors

Three generous reception rooms including sitting room, lounge, and dining room

Well-sized kitchen/diner with excellent natural light and storage

Modern tiled bathroom, separate WC, and dedicated utility/laundry room

Converted attic room ideal for office, playroom, or additional storage

Prime LE4 location near Melton Road, schools, shops, and public transport

EPC Rating C

Freehold

BM Estates is pleased to offer this well-presented and generously proportioned three-bedroom mid-terrace house, ideally located on Windsor Avenue just off both Melton Road and Loughborough Road in the highly sought-after Belgrave area of Leicester. This substantial family home spans three floors, offering flexible and spacious accommodation ideal for growing families or those seeking room to work from home.

The property boasts three separate reception areas on the ground floor, including a bright sitting room with bay window, a second lounge with patio access to the garden, and a formal dining room that connects seamlessly to the well-sized kitchen/diner. The layout is perfect for both everyday living and entertaining, with a good flow between rooms and plenty of natural light throughout.

On the first floor, you will find three well-proportioned double bedrooms, all offering ample space and versatility. A stylish and fully tiled family bathroom features a walk-in shower, with a separate WC and a practical laundry/utility room completing the floor. The second floor has been converted into a large attic room with potential for use as a home office, playroom, or additional storage.

Externally, the rear garden is private and well-maintained, offering a lawn area, mature borders, and a paved patio space ideal for relaxing or hosting. A brick-built outbuilding to the rear includes storage and a second WC—great for garden use or additional utility needs. The front garden is enclosed and features a gated entrance with potential for off-street parking (STPP).

Windsor Avenue is set in a thriving and diverse neighbourhood just a short walk from the renowned Golden Mile, where you’ll find an array of independent shops, restaurants, supermarkets, and cultural hubs. Local schools such as Rushey Mead Academy are within easy reach, along with places of worship and excellent transport links into Leicester City Centre.

Front
 The front of the property at 37 Windsor Avenue showcases classic mid-terrace charm, featuring a striking white rendered façade with a prominent bay window across two floors. A traditional covered entrance porch with brick detail adds character and provides shelter to the main doorway. The frontage is enclosed by a low brick boundary wall with decorative block panels and a wrought iron gate, offering both privacy and kerb appeal on this peaceful residential street.

  
Reception 1
 3.79m x 4.04m (12'5" x 13'3")
To the rear, the third reception room functions as a cosy sitting room or family lounge, complete with French doors that open out onto the rear garden. This room features a brick fireplace surround and a decorative ceiling, adding character while offering direct access to outdoor living space.

  
Reception 2
 3.66m x 3.64m (12'0" x 11'11")
At the front of the property is a bright and elegant lounge, beautifully lit by a large bay window. This room boasts classic decor, a feature gas fire, and traditional ceiling detailing, making it an ideal space for relaxing or hosting guests in a formal setting.

  
Kitchen
 4.36m x 2.83m (14'4" x 9'3")
The kitchen/diner is a spacious and practical area, offering ample cupboard storage, generous worktop space, and room for a family dining table. Bright and functional, it serves as a central hub for daily cooking and mealtimes, with easy access to both the dining room and rear garden

  
Dining Room
 3.11m x 5.05m (10'2" x 16'7")
The central reception room serves as the dedicated dining room, providing a generous area for family meals and entertaining. With its patterned wallpaper, warm lighting, and feature fireplace, it offers a welcoming and intimate space to gather.

  
Bedroom 1
 3.92m x 3.97m (12'10" x 13'0")
A spacious double bedroom featuring a large bay window that floods the room with natural light, along with ample floor space and a charming decorative fireplace.

  
Bedroom 2
 4.97m x 4.81m (16'4" x 15'9")
Another generously sized double bedroom with a wide window overlooking the rear, neutral decor, and plenty of room for furniture or a study setup.

  
Bedroom 3
 3.11m x 4.72m (10'2" x 15'6")
A bright and comfortable double bedroom with bay window, ideal for children, guests, or as a cosy home office or nursery.

  
Family Bathroom
 2.12m x 2.74m (6'11" x 8'12")
Modern tiled bathroom with walk-in glass shower, pedestal sink, WC, heated towel rail, and built-in storage. Bright and stylish with natural light.

  
WC
 Stylish fully tiled WC featuring a modern vanity unit with basin, low-level toilet, and frosted window for natural light and privacy. Clean and compact design.

  
Room in attic
 3.41m x 5.80m (11'2" x 19'0")
Bright and spacious attic room with vaulted ceiling, fitted mirrors, and ample storage potential. Ideal as a dressing room, office, or additional bedroom space.

  
Garden
 Spacious rear garden with a well-maintained lawn, mature trees, and surrounding shrubbery. Offers ample outdoor space, ideal for family use or entertaining.

  

EPC for Windsor Avenue, Leicester, LE4

Energy
blank Current Potential

Location

Floor Plan

Floor Plan 1

Property Image

Front
Floor plan
Reception 2
Reception 1
Kitchen
Dining Room
Stairs leading to
Bedroom 1
bedroom 2
Bedroom 3
Photo 10
Photo 9
Stairs leading to
Room in attic
Room in attic
Photo 7
Photo 8

Arrange a Viewing

Arrange a Viewing

Mortgage Calculator

Mortgage Details

Results

Stamp duty calculation

See full breakdown

Total SDLT due

Below is a breakdown of how the total amount of SDLT was calculated

Up to £0k (Percentage rate 0 %)

Above £0k and up to £0k (Percentage rate 0 %)

Above £0k and up to £0k (Percentage rate 0 %)

Above £0k and up to £0k (Percentage rate 0 %)

Above £0k and up to £0m (Percentage rate 0 %)

Above £om (Percentage rate 0 %)

Please note: This is for illustrative purposes only. The above calculator should not be relied upon when making financial decisions. Please seek advice from a specialist financial provider.

IMPORTANT NOTICE FROM BM ESTATES

Descriptions of the property are subjective and are used in good faith as an opinion and NOT as a statement of fact. Please make further specific enquires to ensure that our descriptions are likely to match any expectations you may have of the property. We have not tested any services, systems or appliances at this property. We strongly recommend that all the information we provide be verified by you on inspection, and by your Surveyor and Conveyancer.

Fees

Please note the charges listed below are the maximum fees that will be applied unless stated otherwise.

Fees/Charges in England from 1st June 2019

Permitted Charges in accordance with the Tenant Fee Act 2019 for an Assured Shorthold Tenancy.

Holding Deposit max one week's rent. First months rent in advance.

Tenancy Deposit 5 or 6 weeks depending upon the rental amount.

Early termination(when requested by the tenant) a charge not exceeding the financial loss experienced by the landlord.

Late Rent interest charged at 3% above the Bank of England base rate when rent is more than 14 days late.

Lost key equivalent to the cost incurred (or security device).

Changing tenancy documents(after the commencement of tenancy) £50 inc VAT

Non-Housing Act tenancy fees not affected by the Tenant Fee Act 2019:

Tenancy Agreement £300 inc VAT. Extension Agreement £125 inc VAT

Company Reference £175 inc VAT. Administration £50 inc VAT

Damage Fee £90 inc VAT. Guarantor Reference per guarantor £100 inc VAT

Deed of Guarantee £75 inc VAT. Check-In (minimum fee) £72 inc VAT

Arrears Fee £30 inc VAT. Overpaid Rent Return £25 inc VAT. Pet Licence £75 inc VAT

BM Estates is a member of and covered by the Money Shield Client Money Protection Scheme. BM Estates is also a member of a redress scheme provided by The Property Ombudsman.

Please note the charges listed below are the maximum fees that will be applied unless stated otherwise.

Fees/Charges in England from 1st June 2019

Permitted Charges in accordance with the Tenant Fee Act 2019 for an Assured Shorthold Tenancy.

Holding Deposit max one week's rent. First months rent in advance.

Tenancy Deposit 5 or 6 weeks depending upon the rental amount.

Early termination(when requested by the tenant) a charge not exceeding the financial loss experienced by the landlord.

Late Rent interest charged at 3% above the Bank of England base rate when rent is more than 14 days late.

Lost key equivalent to the cost incurred (or security device).

Changing tenancy documents(after the commencement of tenancy) £50 inc VAT

Non-Housing Act tenancy fees not affected by the Tenant Fee Act 2019:

Tenancy Agreement £300 inc VAT. Extension Agreement £125 inc VAT

Company Reference £175 inc VAT. Administration £50 inc VAT

Damage Fee £90 inc VAT. Guarantor Reference per guarantor £100 inc VAT

Deed of Guarantee £75 inc VAT. Check-In (minimum fee) £72 inc VAT

Arrears Fee £30 inc VAT. Overpaid Rent Return £25 inc VAT. Pet Licence £75 inc VAT

BM Estates is a member of and covered by the Money Shield Client Money Protection Scheme. BM Estates is also a member of a redress scheme provided by The Property Ombudsman.

Letting Fee Information

The asking rent does not include letting fees. Our standard administration fee (which covers general administration and preparation of paperwork) is £xxx (£xxx+VAT). A security deposit, usually equivalent to six weeks rent, is also payable.

Depending on your circumstances and the property you select, one or more of the following may also be charged to you upfront;

Fees may be charged on a per person or per property basis, please call us on 0116 273 1414